Andreas Heinrichs
Geschäftsinhaber
Wohnkomfort trifft Potenzial: Großzügiges Einfamilienhaus sucht neue Besitzer
Objekt ID: 2EW002
85391 Allershausen
Unsere Infobox
Objektnummer: 2EW002
Objektart: Einfamilienhaus zum Kauf
Adresse: 85391 Allershausen
Preis:
Flächen & Eckdaten
Ihre Gesamtkosten
3,57 % inkl. MwSt. vom beurkundeten Kaufpreis
Allgemeine Informationen
Beschreibung
In einem gewachsenen und familienfreundlichen Wohngebiet erwartet Sie dieses charmante Einfamilienhaus mit einer großzügigen Wohnfläche von ca. 271 m². Das Grundstück von ca. 686 m² bietet nicht nur Raum für Ihr Familienleben, sondern auch zahlreiche Möglichkeiten zur individuellen Nutzung oder Vermietung.
Mit zwei Vollgeschossen, einem großzügigen Dachgeschoss und einem nutzbaren Kellergeschoss bietet dieses Haus ein Raumangebot, das keine Wünsche offenlässt. Hinzu kommt eine geräumige Garage von ca. 13,4 x 4,1 Meter sowie weitere 3-4 Kfz-Stellplätze, die Mobilität und Komfort für Ihre Fahrzeuge garantieren. Ein weiterer Vorteil ist, dass das Haus aktuell leersteht und somit die Möglichkeit eines direkten Einzugs oder einer schnellen Vermietung bietet. Durch den Aufzug (derzeit stillgelegt), der vom Kellergeschoss über die Garage bis ins 1. Obergeschoss fährt, ist das Haus zudem behinderten- und seniorengerecht.
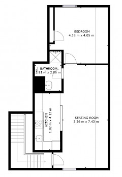
Das Erdgeschoss beeindruckt durch einen großzügigen Flur, der als zentrales Element fast alle Räume dieser Ebene miteinander verbindet. Hier können Sie kulinarische Momente in der separaten Küche mit Blick in den Ost-Garten genießen oder im Essbereich mit charmanten grünen Fliesen entspannen. Der ansprechend verlegte Parkettboden in Fischgrät im Wohnbereich führt zudem in einen lichtdurchfluteten Wintergarten, der den perfekten Übergang zum Garten bietet.
Für weitere Informationen fordern Sie unser ausführliches Exposé an!
Eckdaten & Ausstattung
ALLGEMEIN
+ Einfamilienhaus in familienfreundlicher Lage
+ Haus befindet sich in gewachsenem Wohngebiet
+ EFH mit ca. 271 m² Wohnfläche
+ ca. 686 m² Grundstücksfläche
+ ca. 120 m² Nutzfläche im Keller
+ Erd-, Ober-, Dach- und Kellergeschoss
+ Zwei Vollgeschosse (EG + OG) zzgl. KG und DG
+ real geteiltes Grundstück (kein Erbbaurecht)
+ 3-4 Kfz-Stellplätze (Garage mit ca. 13,4 x 4,1 Meter + Außenfläche)
+ Haus steht derzeit leer und kann sofort bezogen oder vermietet werden
ERDGESCHOSS
+ Treppenhaus mit nachträglich eingebauten Aufzug
+ Aufzug hält in jeder Etage (außer DG), derzeit außer Betrieb gesetzt
+ jede Etage mit Zwischengeschoss (Podest-Treppe)
+ großzügiger Flur mit Zugang in fast alle Räume auf dieser Ebene
+ Badezimmer mit rollstuhlgerechtem Umbau
+ Bad mit Dusche, WC und Waschbecken
+ geschlossene Küche (eigener Raum) mit Blick in den Ost-Garten
+ separater Essbereich mit grünen Fliesen und Kachelofen
+ offener Durchgang zum Wohnzimmer mit Wintergarten
+ schöner Parkettboden im Wohnzimmer in Fischgrät
+ nachträglich angebauter Wintergarten ist nach Süden ausgerichtet
+ Zugang zum Garten über den Wintergarten
Für weitere Informationen fordern Sie unser ausführliches Exposé an!
Nachbarschaft
Die Gemeinde Allershausen hat etwa 5.000 Einwohner und bietet eine gut ausgebaute Infrastruktur in einer ansprechenden, gewachsenen Umgebung. Über die Anschlussstelle A9 sind Sie in etwa 30 Minuten in München, in 20 Minuten am Flughafen, in 20 Minuten in Pfaffenhofen und in etwa 30 Minuten in Ingolstadt. Freising erreichen Sie über die St. 2084 in rund 15 Minuten.
In Allershausen finden Sie zahlreiche Geschäfte des täglichen Bedarfs wie Aldi, Edeka, Metzger, Bäcker, Apotheken, Tankstellen, Banken, Restaurants und Arztpraxen, die bequem und in nur wenigen Minuten erreichbar sind.
Die Gemeinde bietet außerdem mehrere Kinderkrippen, Kindergärten und Kinderhorte sowie eine Grund- und Mittelschule. Weiterführende Schulen, wie Gymnasium, Wirtschafts- und Realschule, Berufsschulen sowie FOS/BOS, sind in Freising und/oder Neufahrn verfügbar. Einige Schulbusse verkehren zwischen diesen Orten und Allershausen.
Allershausen verfügt über gut ausgebaute Fahrradwege, diverse Vereine und abwechslungsreiche Laufstrecken, die zahlreiche Freizeitmöglichkeiten bieten. Darüber hinaus gibt es in der Gemeinde öffentliche Spielplätze und einen Trimm-Dich-Pfad. In Allershausen können Sie sowohl die Natur genießen als auch von den vielfältigen Angeboten des täglichen Lebens profitieren.
Lageplan
Wichtige Informationen
Es liegt ein Energiebedarfsausweis vor.
Dieser ist gültig bis 21.1.2034.
Endenergiebedarf beträgt 185.60 kwh/(m²*a).
Wesentlicher Energieträger der Heizung ist Öl.
Das Baujahr des Objekts lt. Energieausweis ist 1972.
Die Energieeffizienzklasse ist F.
Sehr geehrter Kaufinteressent,
bitte kontaktieren Sie uns erst über das Kontaktformular "Anbieter kontaktieren" des Immobilienportal oder unserer Webseite/Facebook-Seite. Bitte geben Sie hier folgende Daten an:
+ komplette Anschrift
+ eine E-Mail-Adresse und
+ eine Telefonnummer
Dieses Exposé zeigt Ihnen einen ersten groben Überblick über diese Immobilie. Fordern Sie daher, mit Ihren vollständigen Daten, unser umfangreiches Exposé an. Dort finden Sie alle weiteren Informationen zu dieser Immobilie wie z. B. Adresse, Objektbeschreibungen und weiteren Innenbilder. Sobald Sie das Exposé erhalten haben, können wir gerne einen Besichtigungstermin telefonisch (Montag – Freitag von 09:00 bis 14:00 Uhr) oder per E-Mail vereinbaren.
Für die Richtigkeit unserer Angaben übernehmen wir keine Haftung. Wir versichern jedoch, dieses Angebot nach bestem Wissen und den uns übermittelten Angaben erstellt zu haben. Der Grundrissplan ist zur Maßentnahme nicht geeignet. Bitte um Beachtung, dass teilweise mit Weitwinkel fotografiert worden ist.
HINWEIS ZUR DOPPELTÄTIGKEIT:
Wir weisen darauf hin, dass wir auch für den jeweils anderen Vertragspartner (Verkäuferseite) entgeltlich bzw. provisionspflichtig tätig sind.




